3 room apartment in The Hague
-
Area
- 60 m²
-
Property type
- Apartment
-
Rooms
- 3 rooms
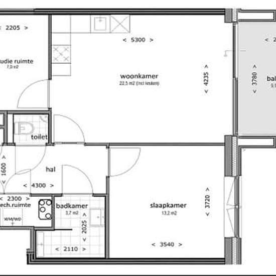
For rent: Apartment President Kennedylaan, The Hague President Kennedylaan, 2517 HV The Hague €1,480,- excluding gas, water and electricity Apartment 3 rooms 60 m² This spacious 3-room apartment of 60 m² offers comfort and a practical layout in a central and sought-after neighborhood of The Hague. Ideal for first-time renters, couples or professionals who enjoy urban living.
- Rent
- €1,480 per month
- Location
- Den Haag
- Rental period
- -
- Verified landlord
- No
- Date
- Today
- Available
- Contact landlord
- Utilities
- Contact landlord
- Deposit
- Contact landlord
- Prepaid rent
- Contact landlord
Location