3 room apartment in The Hague
-
Area
- 80 m²
-
Property type
- Apartment
-
Rooms
- 3 rooms
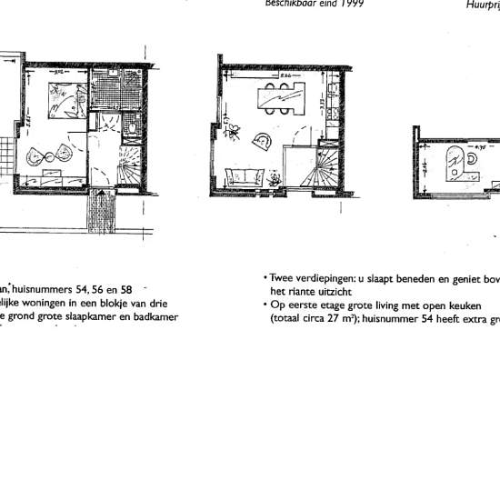
Buizerdlaan 56 | Den Haag / Ypenburg | Eengezinswonign woning met drie woonlagen Reageren en selectie: U kunt alleen online reageren op deze woning. Doe dit via de ‘reageer’-knop onderaan de pagina van de advertentie op onze website.. Wij maken een selectie van de kandidaten die kunnen bezichtigen. Bezichtigingsaanvragen per e-mail of telefoon nemen wij niet in behandeling. Indeling: Deze speelse en gerenoveerde woning heeft een woonoppervlak van circa 80 m². Op de begane bevindt zich een grote slaapkamer en de badkamer. Op de tweede woonlaa...
- Rent
- €1,329 per month
- Location
- 2496, The Hague
- Rental period
- -
- Verified landlord
- Yes
- Date
- Today
- Available
- Contact landlord
- Utilities
- Contact landlord
- Deposit
- Contact landlord
- Prepaid rent
- Contact landlord
Location