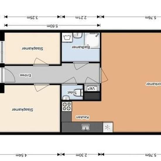
3 room apartment in The Hague
-
Area
- 69 m²
-
Property type
- Apartment
-
Rooms
- 3 rooms
Object: Direct bij de eigenaar Huurtermijn: Onbepaalde termijn Oplevering: Zie foto Inkomen eis:2,8 x Bruto huur Garantiestelling mogelijk: Ja Borg: 1 Maand Bemiddeling kosten: Nee Woningdelers toegestaan: Ja Huisdieren toegestaan: Afhankelijk van de Eigenaar Huurtoeslag grens: Nee Geschikt voor studenten: Afhankelijk van de Eigenaar
- Rent
- €1,220 per month
- Location
- 2513, The Hague
- Rental period
- -
- Verified landlord
- Yes
- Date
- Today
- Available
- Contact landlord
- Utilities
- Contact landlord
- Deposit
- Contact landlord
- Prepaid rent
- Contact landlord
Location