3 room apartment in Nederland
-
Area
- 71 m²
-
Property type
- Apartment
-
Rooms
- 3 rooms
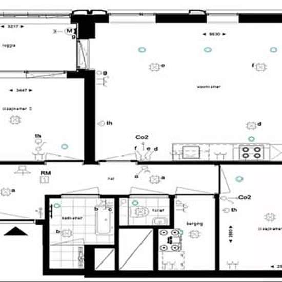
" Modern Appartement aan de Ottho Heldringstraat – Amsterdam Ottho Heldringstraat, 1066 BA Amsterdam Huurprijs: € 1.639,- per maand (excl. G/W/E) Op zoek naar een licht en sfeervol appartement in Amsterdam? Dit 3-kamerappartement van ca. 71 m² combineert comfort met een praktische indeling, perfect voor stellen, starters of kleine gezinnen. Kenmerken van het appartement: Type: Appartement Aantal kamers: 3 Woonoppervlakte: ca. 71 m² Ruime woonkamer – licht en sfeervol dankzij grote ramen Open keuken – het hart van de woning, ...
- Rent
- €1,639 per month
- Location
- Nederland
- Rental period
- -
- Verified landlord
- No
- Date
- Today
- Available
- Contact landlord
- Utilities
- Contact landlord
- Deposit
- Contact landlord
- Prepaid rent
- Contact landlord
Location