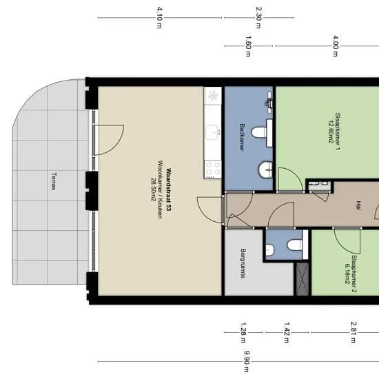
3 room apartment in Helmond
-
Area
- 68 m²
-
Property type
- Apartment
-
Rooms
- 3 rooms
FOR RENT: Waardstraat 53 Helmond Rent: €1,295 excl. €75 service charges Available from 01-01-2026 ORANJEKADE - HELMOND - RENTAL APARTMENTS In Oranjekade you will soon live right on the water that is so characteristic of Helmond: the canal, also known as the Zuid-Willemsvaart. Oranjekade alternates stylish warehouse architecture with contemporary residential buildings. The development has an allure you see in world cities like Amsterdam and Berlin. In Oranjekade you live in nature and are still a few minutes from the heart of the vibrant cit...
- Rent
- €1,295 per month
- Location
- 5701, Helmond
- Rental period
- -
- Verified landlord
- Yes
- Date
- Today
- Available
- Contact landlord
- Utilities
- €75
- Deposit
- €1,295
- Prepaid rent
- Contact landlord
Location