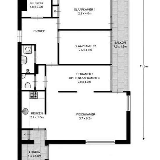
3 room apartment in Haarlem
-
Area
- 77 m²
-
Property type
- Apartment
-
Rooms
- 3 rooms
No Directly with the owner Deposit 1005 Guarantee Possible Housing allowance Not possible Income requirement 3.1 x Gross monthly rent Lease term Indefinite term Delivery Unfurnished
- Rent
- €1,005 per month
- Location
- 2034, Haarlem
- Rental period
- -
- Verified landlord
- Yes
- Date
- 11 days ago
- Available
- Contact landlord
- Utilities
- Contact landlord
- Deposit
- Contact landlord
- Prepaid rent
- Contact landlord
Location