3 room apartment in Eindhoven
-
Area
- 76 m²
-
Property type
- Apartment
-
Rooms
- 3 rooms
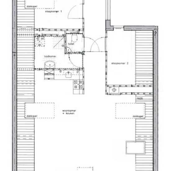
3-room apartment in the center of Eindhoven, suitable for a maximum of 2 people General This apartment complex consists of 8 apartments and is located in the heart of Eindhoven. The entrance is equipped with an intercom system and mailboxes with a bell panel. The complex is located opposite the Sint-Catharinakerk and is centrally situated in the city center. On the ground floor of the complex there is a restaurant. The apartments are spread over 3 floors. In the immediate vicinity, ample paid parking is available. Layout Surface area 76 m². ...
- Rent
- €1,550 per month
- Location
- 5611, Eindhoven
- Rental period
- -
- Verified landlord
- Yes
- Date
- 2 days ago
- Available
- 2026-05-01
- Utilities
- Contact landlord
- Deposit
- Contact landlord
- Prepaid rent
- Contact landlord
Location