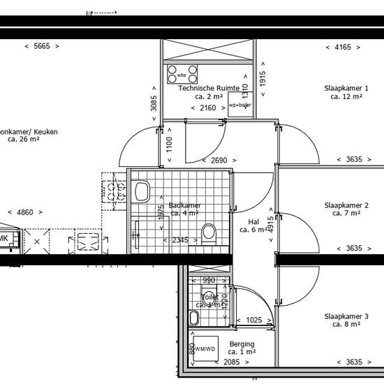
3 room apartment in Delft
-
Area
- 76 m²
-
Property type
- Apartment
-
Rooms
- 3 rooms
THE PLACE WHERE YOU FEEL AT HOME The Family: your house, your home Live in the city close to Delft’s historic center: come live in The Family! A distinctive complex with a new residential concept on Röntgenweg, southeast of the center. The apartments range in size from approximately 50 m² to 116 m². In total there are 94 rental apartments in an ideal location. Whether you live alone, with your family, partner, loyal four-legged friend, or a combination of these — everyone feels at home in The Family! The Family is a sustainable residential b...
- Rent
- €1,321 per month
- Location
- 2624, Delft
- Rental period
- -
- Verified landlord
- Yes
- Date
- Today
- Available
- 2026-02-01
- Utilities
- €70
- Deposit
- Contact landlord
- Prepaid rent
- Contact landlord
Location