3 room apartment in Amsterdam
-
Area
- 101 m²
-
Property type
- Apartment
-
Rooms
- 3 rooms
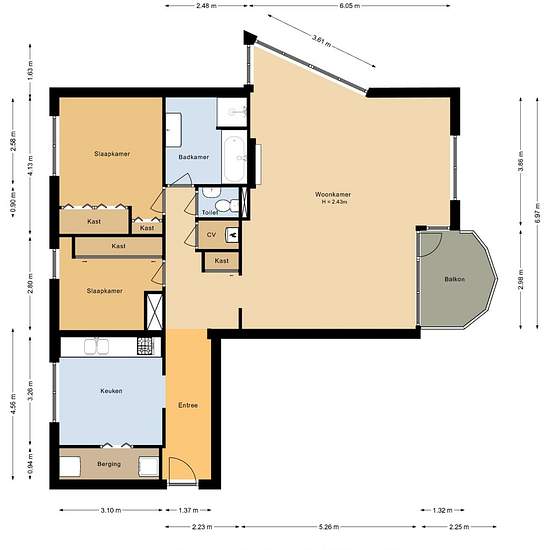
For rent, a spacious apartment of approx. 101 m² with 2 bedrooms, a bathroom and a balcony. Directly opposite you will find the Zuidas. The apartment is accessible by elevator, has a storage room on the ground floor and has a favorable energy label B. - Note: among others, flooring and window coverings available for takeover REQUEST A VIEWING 1. Go to our own website and search for the specific property. 2. At the bottom right you will find a green button: "Plan Appointment". 3. Then fill in the short questionnaire so we can see whether your...
- Rent
- €1,950 per month
- Location
- 1082, Amsterdam
- Rental period
- -
- Verified landlord
- Yes
- Date
- 3 days ago
- Available
- Contact landlord
- Utilities
- €60
- Deposit
- €3,900
- Prepaid rent
- Contact landlord
Location