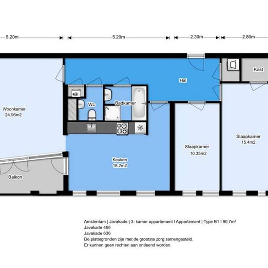
3 room apartment in Amsterdam
-
Area
- 95 m²
-
Property type
- Apartment
-
Rooms
- 3 rooms
INTERESTED IN RENTING A HOME ON JAVA ISLAND VI? Spacious 3-room apartment of 95 m². The home has two bedrooms. There is a separate toilet. Discover 70 modern rental apartments in a unique location in the Eastern Docklands. Java Island VI offers bright homes from 45 to 140 m², ranging from 2- to 4-room apartments and maisonettes, many with a sunny balcony and unobstructed views over the water. Enjoy striking architecture designed by top architects and a green environment with inner courtyards. Shops, restaurants and Amsterdam city centre are ...
- Rent
- €1,944 per month
- Location
- 1019, Amsterdam
- Rental period
- -
- Verified landlord
- Yes
- Date
- Today
- Available
- 2026-02-01
- Utilities
- €67
- Deposit
- Contact landlord
- Prepaid rent
- Contact landlord
Location