3 room apartment in Amsterdam
-
Area
- 69 m²
-
Property type
- Apartment
-
Rooms
- 3 rooms
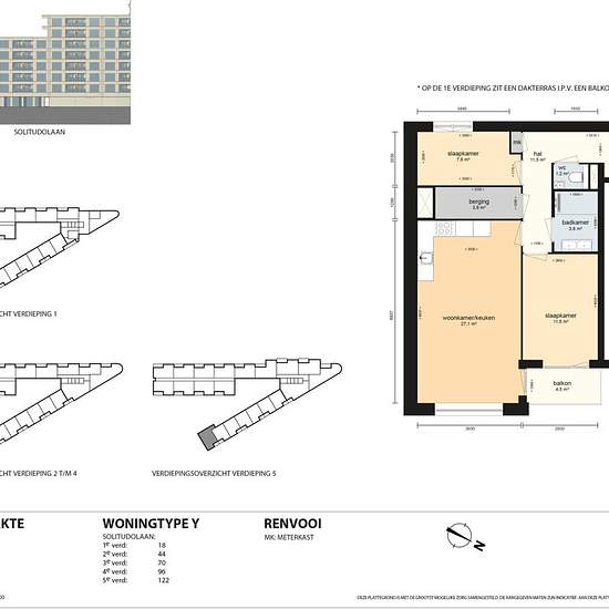
3-room apartment with a living area of 68.9 m2, a fully equipped kitchen and a bathroom with a shower and double sink. Location close to the center, surrounded by greenery and water and 10 minutes from Amsterdam Amstel station. This property includes 1 parking space in the garage. Interested in renting a property in Stage 1? Check the Wonen bij Bouwinvest website, on the “Rent calculator” page, to see if you meet the (income) requirements. Sufficient steady and regular income is important to be able to rent. Also read the “How it works” page...
- Rent
- €1,936 per month
- Location
- 1096, Amsterdam
- Rental period
- -
- Verified landlord
- Yes
- Date
- Yesterday
- Available
- 2026-01-01
- Utilities
- €100
- Deposit
- Contact landlord
- Prepaid rent
- Contact landlord
Location