2 room apartment in Leiden
-
Area
- 25 m²
-
Property type
- Apartment
-
Rooms
- 2 rooms
Available now
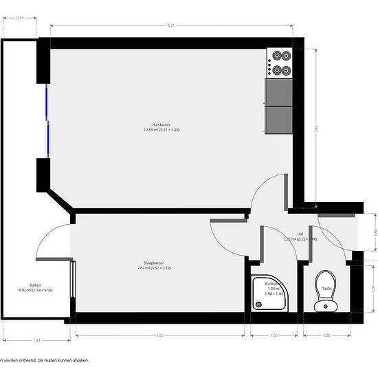
This pleasant apartment on the Hoge Rijndijk will be available from 1 March 2026. The property has an area of 25 m². The living room and bedroom have a practical, straightforward layout, allowing you to furnish the spaces efficiently and make optimal use of them. The apartment is located on the first floor at the rear of the building. You have your own kitchen and bathroom. The bedroom is on the right side of the apartment and is separated from the living area. At the rear of the building there is a spacious balcony that runs across the fu...
- Rent
- €904 per month
- Location
- 2314, Leiden
- Rental period
- -
- Verified landlord
- Yes
- Date
- 2 days ago
- Available
- Available now
- Utilities
- Contact landlord
- Deposit
- €1,356
- Prepaid rent
- Contact landlord
Location