2 room apartment in Leiden
-
Area
- 25 m²
-
Property type
- Apartment
-
Rooms
- 2 rooms
Available now
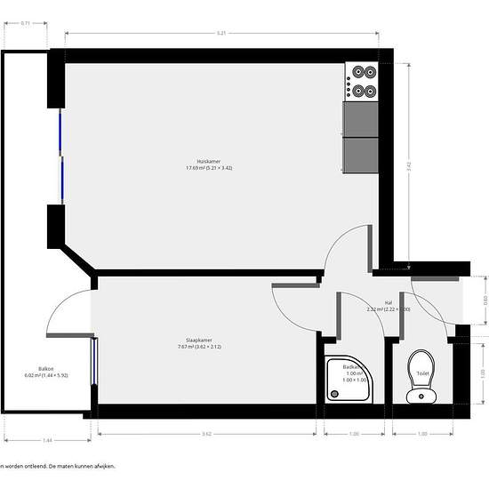
This lovely apartment on the Hoge Rijndijk will be available as of 1 March 2026. The property has an area of 25 m². The living room and bedroom have a practical, straightforward layout, allowing you to furnish the spaces efficiently and make optimal use of them. The apartment is located on the first floor, at the rear of the building. You have your own kitchen and bathroom. The bedroom is on the right side of the property and is separated from the living area. At the rear of the building there is a spacious balcony that runs across the ful...
- Rent
- €904 per month
- Location
- 2314, Leiden
- Rental period
- -
- Verified landlord
- Yes
- Date
- 4 days ago
- Available
- Available now
- Utilities
- Contact landlord
- Deposit
- €1,356
- Prepaid rent
- Contact landlord
Location