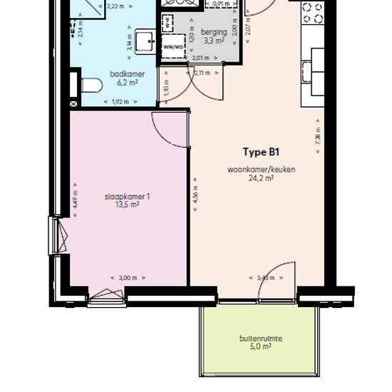
2 room apartment in Haarlem
-
Area
- 49 m²
-
Property type
- Apartment
-
Rooms
- 2 rooms
**COMING SOON FOR RENT: INDEPENDENT HOUSING FOR 55+ | HOF VAN JACOB IN HAARLEM** Interested? Sign up directly via "contact the realtor." Are you looking for a place where you can live independently, possibly with care nearby? That can be found at Hof van Jacob! In a beautiful location in Haarlem-South, there is a complex where living, care, and socializing come together. You will find everything under one roof, and you will feel at home right away. Hof van Jacob is more than just a place to live. Various buildings with unique facilities ...
- Rent
- €850 per month
- Location
- 2035, Haarlem
- Rental period
- -
- Verified landlord
- Yes
- Date
- 26 days ago
- Available
- Contact landlord
- Utilities
- €90
- Deposit
- Contact landlord
- Prepaid rent
- Contact landlord
Location