2 room apartment in Diemen
-
Area
- 84 m²
-
Property type
- Apartment
-
Rooms
- 2 rooms
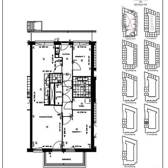
At Betonijzer 92, we offer this modern and energy-efficient apartment for rent, with a living area of 84 m². The apartment is spaciously designed and features a bright living room, a modern kitchen, and neat sanitary facilities. Thanks to the efficient layout and the high level of finish, you will enjoy optimal living comfort here. This apartment has an energy label A+++, which ensures very low energy consumption and a sustainable living environment. Type of property: Apartment Living area: 84 m² Rent price: €1,492 per month Service costs: €...
- Rent
- €1,449 per month
- Location
- 1111, Diemen
- Rental period
- -
- Verified landlord
- Yes
- Date
- 5 days ago
- Available
- 2026-06-01
- Utilities
- €70
- Deposit
- Contact landlord
- Prepaid rent
- Contact landlord
Location