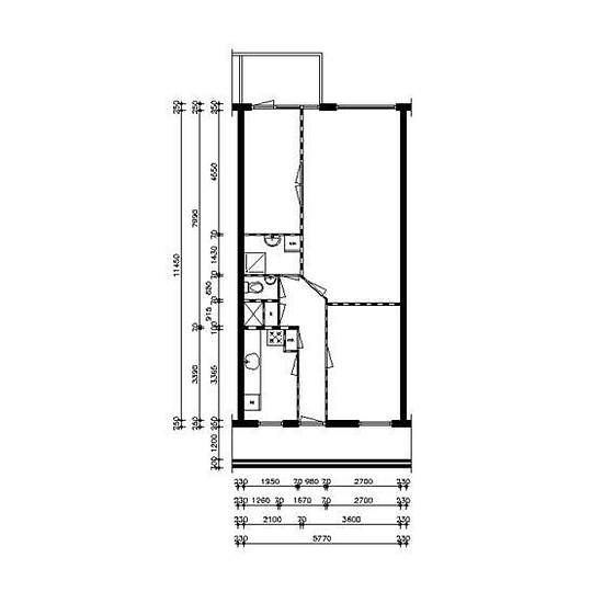
2 room apartment in Delft
-
Area
- 55 m²
-
Property type
- Apartment
-
Rooms
- 2 rooms
A quiet neighborhood with lots of greenery, nice play areas, a variety of homes, and good accessibility. Due to its favorable location on the Provincialeweg, there is a quick connection from there to the Westland, Rijswijk/The Hague, Delft South and the motorway to Amsterdam and Rotterdam. By bike it takes ten minutes to the station or the city center and about fifteen minutes to the Rijswijk shopping center In de Boogaard. There is also a city bus that provides a fast connection to the city center and the station. The following amenities a...
- Rent
- €967 per month
- Location
- 2614, Delft
- Rental period
- -
- Verified landlord
- Yes
- Date
- 4 days ago
- Available
- 2026-02-19
- Utilities
- Contact landlord
- Deposit
- Contact landlord
- Prepaid rent
- Contact landlord
Location