2 room apartment in Amsterdam
-
Area
- 45 m²
-
Property type
- Apartment
-
Rooms
- 2 rooms
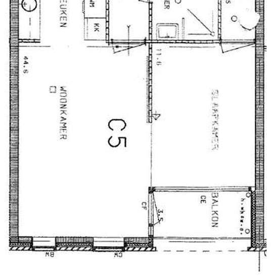
Stylish two-room apartment in Amsterdam – Javakade Javakade, 1019 RL Amsterdam Rent: €1,314 per month (excluding utilities: gas, water and electricity) Looking for a cozy apartment in Amsterdam? This two-room apartment of approx. 45 m² offers a pleasant atmosphere, ideal for first-time renters or couples who want to live centrally with character and comfort. Layout & highlights: Living room – bright, cozy and atmospheric Open kitchen – practical and modern Bedroom – quiet and comfortable Bathroom – neat and well-kept Living area: 45...
- Rent
- €1,314 per month
- Location
- Amsterdam
- Rental period
- -
- Verified landlord
- No
- Date
- Yesterday
- Available
- Contact landlord
- Utilities
- Contact landlord
- Deposit
- Contact landlord
- Prepaid rent
- Contact landlord
Location