2 room apartment in Amsterdam
-
Area
- 62 m²
-
Property type
- Apartment
-
Rooms
- 2 rooms
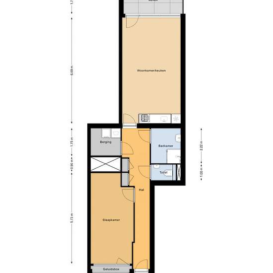
Apartment overview Apartment at Termini 271 in Amsterdam. This apartment offers 2 rooms with a usable area of approximately 62 m². The building was completed around 2020. The layout is practical and well suited to everyday living. Thanks to the favorable location, amenities such as shops, restaurants and cafés, and green spaces are within short reach. Location The property is located in Amsterdam, in an easily accessible area with both urban amenities and quiet residential streets in the immediate surroundings. Here you live centrally, w...
- Rent
- €1,900 per month
- Location
- 1025, Amsterdam
- Rental period
- -
- Verified landlord
- Yes
- Date
- Today
- Available
- 2026-02-01
- Utilities
- €70
- Deposit
- Contact landlord
- Prepaid rent
- Contact landlord
Location