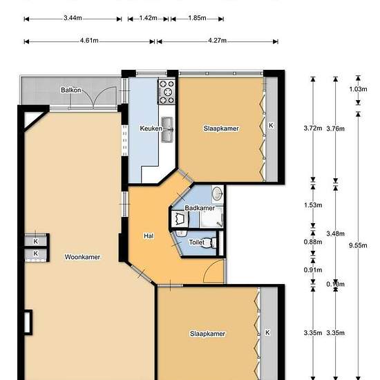
2 room apartment in Amsterdam
-
Area
- 85 m²
-
Property type
- Apartment
-
Rooms
- 2 rooms
Available now
Furnished Apartment @ Beautiful Maasstraat, Amsterdam We’re about to rent out our furnished apartment in Amsterdam Zuid, Rivierenbuurt. (99-II) Let us explain during a viewing why this is one of the most beautiful and practical places to live in the city. Spoiler: everything is nearby — restaurants, shops, city centre, highway and public transport, even nature(!) and it’s a charming street full of 1930s architecture. Both the business district and the Amstel river with its surrounding green fields are just 5 minutes away by bike. Schiphol Ai...
- Rent
- €3,300 per month
- Location
- 1078, Amsterdam
- Rental period
- -
- Verified landlord
- No
- Date
- 27 days ago
- Available
- Available now
- Utilities
- Contact landlord
- Deposit
- Contact landlord
- Prepaid rent
- Contact landlord
Location