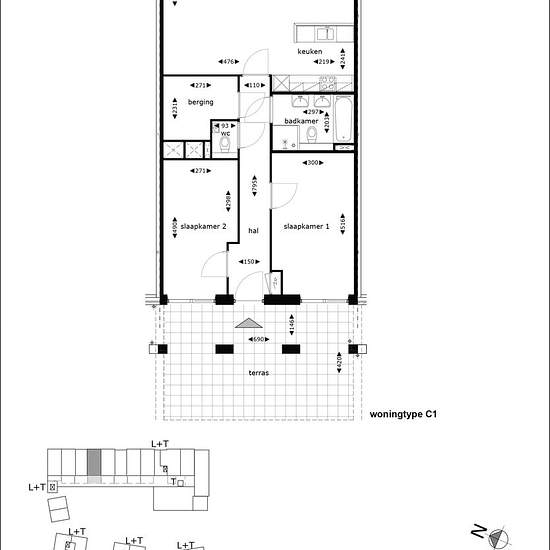
2 room apartment in Amersfoort
-
Area
- 96 m²
-
Property type
- Apartment
-
Rooms
- 2 rooms
In dit levendige project in Amersfoort – Vathorst hebben wij in en boven het winkelcentrum 166 appartementen in beheer. Gelegen aan de Cruquius, Wouda, Beijerinck en Leemans. De centrale ligging op loopafstand van het station Vathorst en diverse uitvalswegen maakt dit project uiterst populair. De appartementen zijn hoogwaardig afgewerkt en standaard voorzien van luxe keuken met diverse apparatuur en minimaal 2 slaapkamers. Er is een grote verscheidenheid aan appartement typen. Of u nou op zoek bent naar een starters appartement of als gezin ...
- Rent
- €1,243 per month
- Location
- 3825, Amersfoort
- Rental period
- -
- Verified landlord
- Yes
- Date
- Yesterday
- Available
- 2026-04-01
- Utilities
- €105
- Deposit
- Contact landlord
- Prepaid rent
- Contact landlord
Location