1 room apartment in Den Helder
-
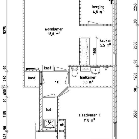
Area
- 44 m²
-
Property type
- Apartment
-
Rooms
- 1 room
- Please note that this accommodation is allocated based on a queue system.
- Rent
- €436 per month
- Location
- 1784, Den Helder
- Rental period
- -
- Verified landlord
- Yes
- Date
- Yesterday
- Available
- Contact landlord
- Utilities
- Contact landlord
- Deposit
- Contact landlord
- Prepaid rent
- Contact landlord
Location