1 room apartment in Amsterdam
-
Area
- 56 m²
-
Property type
- Apartment
-
Rooms
- 1 room
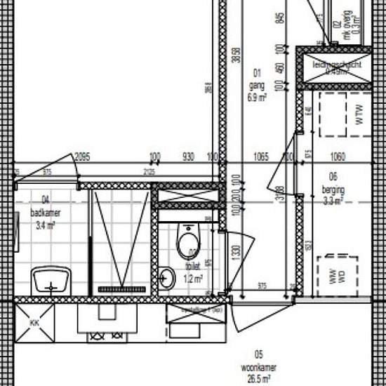
MIDDENHUUR Per 1 Januari 2026 te huur: luxe 2-kamer appartement Develstein is een uniek complex in Amsterdam Zuidoost. Het project bestaat uit twee laagbouwblokken en 1 L-vormig gebouw met 3 hoogteaccenten. In dit complex zijn 262 duurzame appartementen, compleet met badkamer en keuken, beschikbaar voor de verhuur. De appartementen variëren in grootte tussen de 53 tot 75 m², van tweekamer- tot vierkamerappartement, met daarbij een balkon of terras. Er is een parkeergarage maar momenteel zijn alle parkeerplekken verhuurd. Zodra er een beschik...
- Rent
- €1,018 per month
- Location
- 1102, Amsterdam
- Rental period
- -
- Verified landlord
- Yes
- Date
- 3 days ago
- Available
- 2026-01-01
- Utilities
- €55
- Deposit
- Contact landlord
- Prepaid rent
- Contact landlord
Location