3 kamer huis in Zoetermeer
-
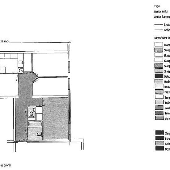
Oppervlakte
- 96 m²
-
Type eigendom
- Huis
-
Kamers
- 3 kamers
Te huur: ruime flatwoning aan de Londenstraat 118 – beschikbaar per 1 december 2025 Aan de Londenstraat 118 komt per 1 december 2025 een ruime en comfortabele flatwoning beschikbaar, gelegen op de 2e verdieping van een verzorgd wooncomplex. De woning heeft een woonoppervlakte van 96 m² en beschikt over drie slaapkamers, ideaal voor een gezin, een stel dat extra ruimte wenst of bewoners die graag een aparte werkkamer of logeerkamer willen inrichten. De ruime woonkamer is licht en uitnodigend en biedt toegang tot een balkon, waar u heerlijk ku...
- Huur
- € 1.250 per maand
- Locatie
- 2711, Zoetermeer
- Huurperiode
- -
- Geverifieerd verhuurder
- Ja
- Datum
- Gisteren
- Beschikbaar
- Contact verhuurder
- Nutsvoorzieningen
- € 48
- Borg
- Contact verhuurder
- Vooruitbetaalde huur
- Contact verhuurder
Locatie